そもそも家事動線が良い間取りとは?プロが教える基本の考え方
動線とは、家庭内の「移動の流れ」です。動線が短くシンプルだと効率が上がり、暮らしが快適になるでしょう。ここでは、プロの視点で動線の基本を解説します。
家事動線だけじゃない。快適な暮らしを支える3つの動線
動線は大きく分けて、「家事動線」「生活動線」「来客動線」の3つです。動線が整理されていないと、日々の生活がしにくくなります。まずは、3つの動線の役割を確認しましょう。
1.家事動線
家事動線は、料理・洗濯・掃除など家事をする人の経路です。家事の効率を上げるためには、キッチンや洗面室、ランドリールームのように家事に使う場所をできるだけコンパクトにまとめると家事の負担軽減につながります。
2.生活動線
生活動線は、家族が起床してから就寝するまでの経路です。家の中をスムーズに移動するためには、生活動線をできるだけシンプルで短い経路になるように計画しましょう。また、廊下や洗面所など、同じ時間に複数の人が使う場所は、幅を広く確保すると快適になります。
3.来客動線
来客動線は、お客様が玄関からリビングや客間へ移動するための経路です。お客様がトイレや洗面を利用する場合も、洗濯物や生活用品など生活感のあるものが目につかないよう工夫しましょう。シンプルな来客動線は、清潔な印象と居心地の良さにつながります。
家事効率を最大化する間取りの3大原則
間取り次第で家事の効率は変わります。ここでは、快適な空間をつくるためのポイントを3大原則としてまとめました。
【原則1】動線を「まとめる」
家事の効率を上げるポイントは、水回りの位置をできるだけまとめることです。キッチン・洗面所・脱衣所の動線が短ければ、無駄な往復が減り複数の家事を同時に進めやすいでしょう。時間や労力が軽減され、毎日の家事がスムーズになります。
【原則2】動線を「回遊させる」
廊下や洗面所は、朝の身支度や帰宅後に複数の人が行き来する場所です。動線が一方通行だと人がすれ違えず、家事や身支度に時間がかかる原因になります。回遊できる動線を計画すれば、双方向に移動できるため混雑を減らせるでしょう。
【原則3】動線を「短くする」
動線が短いと家事の効率は上がります。例えば、洗濯機と洗濯物を干す場所が離れていると洗濯物を干すために何度も行き来しなければいけません。「洗う・干す・畳む・しまう」といった一連の流れをできるだけ短い動線でつなぐと、効率が上がるでしょう。
【後悔しないために】整理収納のプロが解説する家事動線の失敗談と対策
間取り図だけを見て、実際の家事動線を思い描くのは、意外と難しいかもしれません。ここでは、動線で家づくりを後悔しないために、よくある失敗談と改善策を解説します。
<よくある失敗談と対策のまとめ>
| 失敗談 | 
原因(よくない間取り) | 
対策(設計の工夫) | 
| 1. 朝の洗面所が渋滞する | 
洗面、脱衣、洗濯の機能が1室に集中している。 | 
・洗面所と脱衣所(洗濯室)を分離する。 
・玄関ホールなどに「セカンドシンク」を設置する。 | 
| 2. 洗濯作業で家中を往復 | 
「洗う・干す・畳む・しまう」場所が物理的に離れている。 | 
・「ランドリールーム」を設けて作業を一室で完結させる。 
・洗濯室の近くに「ファミリークローゼット」を配置する。 | 
| 3. 買い物袋をLDKに放置 | 
玄関からキッチンへの動線が長く、リビングを経由する。 | 
・玄関からパントリーやキッチンへ直接つながる「サービス動線」を設ける。 | 
| 4. 回遊動線が物置になる | 
通路幅が狭く、すれ違いや移動が困難。 | 
・通路幅を適切に確保する(1人用:約80cm、すれ違い:120cm以上)。 
・動線上に「指定の収納場所」を設ける。 | 
 
失敗談1「朝の準備が大渋滞!洗面所が混雑してストレス」
朝、家族の出かける時間帯が重なると、洗面所は混雑しがちです。旧来の住宅では、洗面所と脱衣所、洗濯機を1カ所にまとめた間取りが一般的でした。しかし、移動をスムーズにするためには、洗面所と洗濯機の場所を分けると効果的です。
解決策間取り事例を紹介!
		
		
【アエラホーム ERABERU】 プランNo.2033
解決事例として取り上げている間取りでは、脱衣所の洗面台のほかに、玄関ホールと2階ホールにセカンドシンクが設置されています。特に玄関ホールのセカンドシンクがあると、帰宅後やお客様が手を洗う際にも便利でしょう。
失敗談2「洗濯物を持って家中をウロウロ…干す・畳む・しまうがバラバラ」
「洗濯機は1階、物干しは2階のベランダ、クローゼットは各部屋…」といった間取りでは、移動の距離が長くなり時間も労力も奪われます。洗濯は毎日の家事だからこそ、動線はしっかり考えたいポイントです。
洗濯の効率を上げるアイデアとして、ランドリールームやファミリークローゼットが注目を集めています。洗濯物の「干す・畳む・しまう」が1カ所で完結するため、動線が短くなり家事効率が上がります。
		
解決策間取り事例を紹介!
		
【アエラホーム ERABERU】 プランNo.1006
解決事例として取り上げている間取りでは、脱衣室の隣にファミリークローゼットがあり、その奥にランドリールームが続くプランです。洗濯後の衣類をそのままファミリークローゼットに収納でき、必要なときにすぐ取り出して身支度できます。
失敗談3「買い物帰りの片付けが面倒で、食材がLDKに出しっぱなしに…」
スーパーでまとめて買い物をした後、玄関からキッチンまで重い荷物を運ぶのは一苦労。ついリビングに荷物を仮置きして、部屋が散らかって見える原因にもなります。
玄関からキッチンやパントリーまでの動線が長いと、こうしたストレスが起こりがちです。
解決策間取り事例を紹介!
		
【アエラホーム ERABERU】 プランNo.2060
対策の要点は「玄関からキッチンへの最短ルート」の確保。玄関からシューズインクローゼットを通り抜け、そのままキッチンへ食料品を運べる間取りなら、買い物袋がリビングに滞留せず、動線もスムーズになります。
失敗談4「せっかくの回遊動線が、ただの通路になり物置化…」
回遊動線は家事や移動をスムーズにする便利な仕組みですが、通路幅が狭いとかえって通りにくく不便になる場合があります。
解決策間取り事例を紹介!
		
【アエラホーム ERABERU】 プランNo.1020
対策のカギは、通路幅の確保です。1人が通るなら約80cm、人がすれ違う場所や出入りの多い場所なら120cm以上確保しましょう。さらに、動線上に収納を設ければ、通路に物が置きっぱなしになることもありません。
解決例の間取りでは、玄関からリビングへの動線と水回りへの動線の両方が通れる設計です。キッチンや洗面まわりが2方向からアクセスできるため、身支度の混雑も防げます。
		
【事例で学ぶ】パパママに人気の家事楽を実現する最強の間取りアイデア
ここでは、家事動線の良い間取りを、パパママ世代に人気の事例から厳選して紹介します。理想の暮らしをイメージしながら、後悔しない家づくりのヒントとして役立ててください。
<家事楽を実現する間取りアイデアのまとめ>
| カテゴリ | 
アイデア | 
目的(得られる利便性) | 
| 洗濯動線 | 
オールインワン型 
ランドリールーム | 
「洗う・干す・畳む・しまう」を一室で完結。天候に左右されない。 | 
| 洗面横ファミリークローゼット | 
「洗う→しまう」の動線を最短化。家族の衣類を一元管理できる。 | 
| キッチン動線 | 
キッチン⇔パントリーの回遊動線 | 
調理中・買い物帰りの両方からアクセス可能。在庫管理も容易に。 | 
| ダイニング横並びキッチン | 
配膳と片付けの距離を最短化。家族とのコミュニケーションも向上。 | 
| 収納動線 | 
ただいま動線上の玄関クローク | 
リビングに私物(コート、カバン等)を持ち込ませず、散らかりを防止。 | 
| 暮らしの中心にあるファミリー収納 | 
家族共用の備品(文具、書類、薬)を一元管理し、「探す手間」を削減。 | 
 
洗濯が「ながら作業」で完結する間取り
洗濯は工程が多く、時間も手間もかかる家事です。洗濯を「ながら作業」で効率よく終わらせる間取りのアイデアを解説します。
【アイデア1】オールインワン型ランドリールーム
オールインワン型ランドリールームは、洗濯機・乾燥機・アイロンスペース・カウンター・収納棚を1つの部屋に集約したスタイルです。室内干しなら天候を気にせず、花粉・黄砂の季節も安心して洗濯物を干せます。特に高気密高断熱住宅は、空調や除湿機の効率が高いため、洗濯物が早く乾き、家事の時短にもつながるでしょう。
例えば、物干しスペースと洗濯機の間にカウンターを設けたランドリールームなら、取り込んだ洗濯物を一時的に置いたり畳んだりでき、作業がスムーズに進みます。
		
【アエラホーム ERABERU】 プランNo.1021
【アイデア2】洗面横ファミリークローゼット
洗面所のすぐ隣に、大容量のファミリークローゼットを設けるアイデア。洗濯が終わった衣類をその場でまとめて収納でき、家事の移動を最小限に抑えられます。家族全員の衣類を一括で管理できるため探す手間も減り、家事も身支度も快適になる動線でしょう。
脱衣所のすぐ隣にファミリークローゼットを設ける間取りなら、パジャマや下着などを収納しておくと、洗濯後に各部屋へ運ぶ手間も不要です。さらに衣類をハンガーに吊るして収納する仕組みにすれば、畳む作業も省けて大幅な時短につながります。
		
【アエラホーム ERABERU】 プランNo.1014
料理が時短になるキッチン中心の間取り
キッチンを家事動線の中心に据えると、調理だけでなく配膳や片付けもスムーズになり、家事全体の時短につながります。暮らしやすさを高めるキッチン動線のアイデアを解説しましょう。
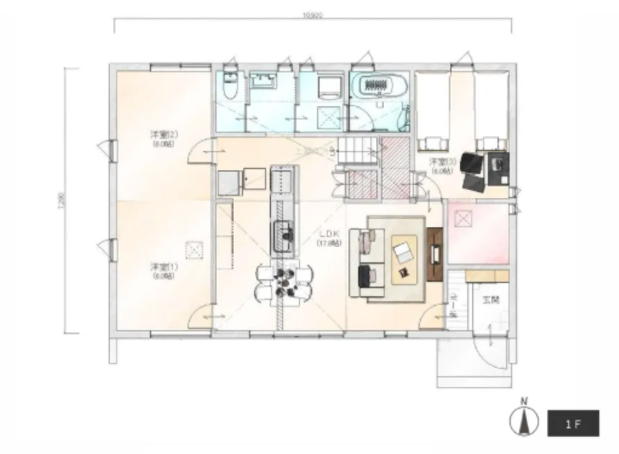
【アイデア1】キッチン⇔パントリーの回遊動線
キッチンとパントリーを回遊できる動線があれば、調理中でも食品ストックや調味料をすぐに取りに行けて効率的。ストックの状況も一目で把握できるため、買い忘れや二重買いを防げます。調理の時短だけでなく、食費の無駄も減らせる実用的なアイデアです。
キッチン側と玄関ホール側の両方から出入りできるパントリーを設置した間取りは、調理中の食材の出し入れはもちろん、買い物帰りの荷物もスムーズに運び込める、非常に効率的なプランと言えるでしょう。
		
【アエラホーム ERABERU】 プランNo.1015
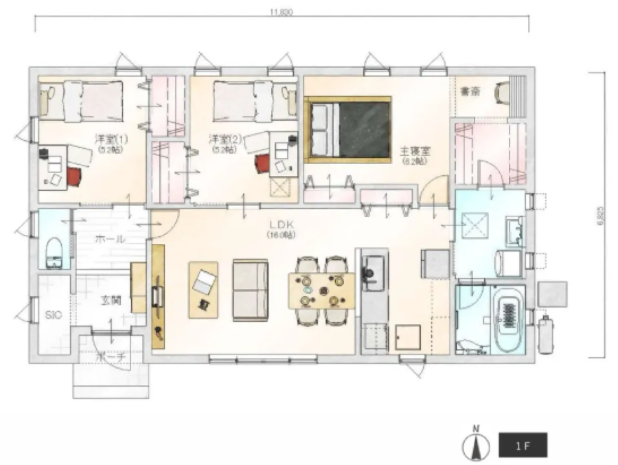
【アイデア2】ダイニング横並びキッチン
ダイニングテーブルとキッチンを横並びに(平行に)配置するレイアウトなら、配膳や片付けの移動距離が最短になり、効率よく作業できます。さらに、調理中もダイニングに座る家族と自然に会話が弾む点も魅力。家事効率と家族のコミュニケーションを両立できる、人気のスタイルです。
注意点として、キッチンとダイニングテーブルの間に確保する通路幅は、80cm~90cm程度あると作業しやすくなります。キッチンの周囲を回遊できるアイランド型を採用する場合は、さらに広いスペースが必要になるため、全体のバランスを考慮して計画しましょう。
		
【アエラホーム ERABERU】 プランNo.1013
家全体が散らからない「収納動線」
どんなに動線が整っていても、収納が不足していれば家の中はすぐに散らかってしまいます。だからこそ「収納動線」は大切です。家をすっきり保つためのアイデアを紹介しましょう。
【アイデア1】ただいま動線上の玄関クローク
帰宅後にコートやカバン、ランドセルをそのままリビングに持ち込むと、すぐに散らかる原因となります。玄関からリビングへ向かう「ただいま動線」の途中にクロークを設けておけば、帰宅した流れで片付けられ、リビングをすっきりした状態に保てます。外から持ち帰った花粉やウイルスが居住空間に入るリスクも減らせるでしょう。
玄関からシューズインクローゼットを通り、そのまま浴室へ直行できる動線も有効です。スポーツやレジャーで汚れて帰宅しても、リビングを汚さず浴室へ向かえるため、掃除の手間もかかりません。
		
【アエラホーム ERABERU】 プランNo.1002
【アイデア2】暮らしの中心にあるファミリー収納
LDKの一角に、文房具や書類、薬など家族で共用する備品をまとめて収納するスペースがあると便利です。1カ所に集約すれば備品が迷子にならず、日々のちょっとしたストレスも減らせます。
例えば、リビングの入口付近に収納を設けるプラン。家族で共有する書類や文房具、薬箱などをまとめておけば、必要なときにすぐ取り出せて重宝するでしょう。
		
【アエラホーム ERABERU】 プランNo.1018
【広さ・タイプ別】30坪台や平屋でも実現する家事動線の工夫
30坪台のコンパクトな家や平屋でも、工夫次第で家事動線の良い間取りは実現できるのです。限られた広さを無駄なく活かし、家事をスムーズにするための間取りの工夫をまとめました。
30坪・35坪で家事動線を良くする設計のコツ
限られた面積を有効活用するには、まず無駄なスペースを減らす設計が要点です。例えば、廊下をできるだけ少なく設計すれば生活空間が広がり、居室間の移動距離が短くなって効率的な動線が生まれます。さらにリビング階段や回遊動線を取り入れれば、家族が自然に顔を合わせる機会も増えるでしょう。
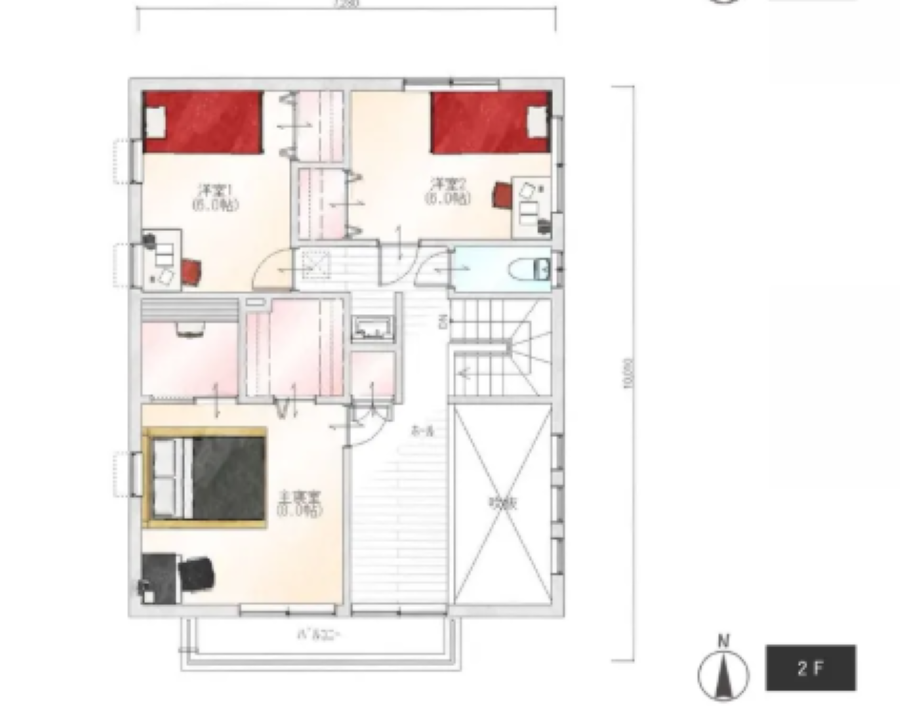
ご家族のライフスタイルに合わせ、広さと動線を両立させる工夫が大切。例えば、2階のインナーバルコニーに洗濯物を干す想定なら、水回りを2階に集約する間取りがあります。採用すると「洗う・干す・畳む・しまう」作業が1フロアで完結し、洗濯動線がシンプルになります。
		
		
【アエラホーム ERABERU】 プランNo.C2-206
ワンフロアで完結。平屋だからこそできる理想の家事動線
平屋の魅力を最大限に活かすには、「ゾーニング」の考え方が欠かせません。家族が集まるパブリックゾーン、個々のプライベートゾーン、家事を担うサービスゾーンをしっかり分けると、生活動線と家事動線も自然に分離できます。
敷地条件によって間取りの形状は制限されますが、L字型やコの字型の間取りを採用すると、生活動線と家事動線を分けやすくなるでしょう。L字型やコの字型は、正方形や長方形のプランに比べ、玄関からパブリックゾーン、サービスゾーンへの動線が自然に分かれます。また、壁面(開口部)が多くなるため、日当たりのよい明るい住まいを実現しやすい点も魅力です。
		
【アエラホーム ERABERU】 プランNo.1031
		
【アエラホーム ERABERU】 プランNo.1023
玄関の方角で変わる家事動線プランニング
家事動線は、玄関の方角によって最適なプランが変わります。玄関の方角は敷地条件で決まる場合も多いですが、方角ごとの特徴を理解したうえで間取りや家事動線を計画すれば、暮らしやすく後悔のない住まいづくりにつながるでしょう。
<玄関の方角で変わる家事動線プランニング>
|   玄関の方角   | 
特徴とプランニングの要点(家事動線・生活動線) | 
| 南玄関 | 
日当たり抜群 | 
【特徴】 玄関が明るい。南側にリビング、北側に水回りを配置するゾーニングが一般的。 
【注意点】 敷地の東西の間口が狭いと、南側に玄関とLDKの両方を配置しにくく、リビングの採光や広さが制限される場合がある。 | 
| 北玄関 | 
プライバシーを確保しやすい | 
【特徴】 道路側(北側)からの視線を気にせず、日当たりの良い南面全体にLDKを広く確保できる。プライバシーと採光を両立しやすい。 
【動線】 玄関(北側)の近くに水回り(浴室・洗面)をまとめやすい。帰宅後の手洗いや着替え、入浴の動線がスムーズになる。 | 
| 東玄関 | 
 | 
【特徴】 朝日が入るため玄関が明るく、気持ちよく外出できる。LDKを南側に配置しやすい。 
【動線】 東側にキッチンを配置すると、朝日の中で朝食の準備が可能。洗濯動線を考える際、物干し場を日当たりの良い南側や、日照時間が長い西側に設けるかなど、生活スタイルに合わせた計画が必要。 | 
| 西玄関 | 
 | 
【特徴】 午後から夕方にかけて明るい。西日の影響を考慮した設計が必須。 
【動線】 一般的にLDKや寝室は西日を避けるため、西側に玄関や水回り(浴室・トイレ)を配置する計画が多い。家事動線は北側や東側にコンパクトにまとめやすい。 | 
 
「理想の家事動線」を
アエラホームと
見つけませんか
「洗濯動線を良くしたいけど、
30坪台の土地では難しい?」
「回遊動線に憧れるけど、予算が心配」
家づくりでは、
家事効率、土地の広さ、予算、
そして2025年から義務化される
省エネ性能など、
多くの課題を同時に解決する
必要があります。
「何かを叶えれば、何かを諦める」
そんな家づくりで後悔しないでください。
アエラホームは、パパママ世代が抱える
悩みに「プロの設計力」で応えます。
アエラホームだからできる「家事楽」と「高性能」の両立
家事動線のポイントを、アエラホームが
どのように実現するのか。
その具体的な魅力をご紹介しましょう。
						
		
1. 土地の広さや形状に合わせた、無駄のない回遊動線と収納計画
30坪台のコンパクトな家や平屋こそ、設計力が問われます。アエラホームは、廊下を極力減らす設計やゾーニングの徹底で、限られた面積を最大限に活かす動線を提案。
「ただいま動線」や「ファミリークローゼット」も組み込み、家全体が散らからない収納計画を実現します。
				
		
2. 高気密高断熱な家が実現する「室内完結ランドリー」
高い住宅性能は、光熱費を抑えるだけではありません。アエラホームの「外張W断熱」が生む高気密高断熱な住まいは、全館空調や除湿機の効率を格段に向上させます。
天候や花粉を気にせず「洗う・干す・畳む・しまう」が1カ所で完結する、快適なランドリールームが実現可能です。
		
		
3. 家族の今と未来を見据えた、最適なライフスタイル提案
ロボット掃除機が走りやすい段差のない設計や、置き配時代に対応する宅配ボックスなど、未来の暮らしも見据えた設計が重要です。
ご家族の将来のライフプランまで丁寧にお聞きし、変化に対応できる「収納動線」や間取りを計画します。
		
		
4. 補助金も活用。省エネ性能と予算を両立する賢い資金計画
2025年義務化の省エネ基準はもちろん、ZEHや長期優良住宅にも対応。高い性能を持つアエラホームの住まいは、「子育てグリーン住宅支援事業」などの補助金も最大限に活用できます。「性能も欲しい、でも予算も大切」というご家族に、賢い資金計画で応えます。
				
		
「私たちの土地や予算でも、
理想の動線は実現できる?」
その答えを、ぜひアエラホームの展示場で
お確かめください。
専門の相談員が、
ご家族の悩みに寄り添い、
後悔しない家づくりをご提案します。
2026年以降を見据え、あなただけの理想の家事動線をプロと実現しませんか
限られた広さや間取りでも、家事動線の工夫次第で快適な住まいは実現できます。今後は、省エネ性能の基準強化やスマート家電との連携など、住まいを取り巻く環境は大きく進化するでしょう。
現在の暮らしだけでなく、未来のライフスタイルも見据えて家づくりを考えれば、長く快適に暮らせる理想の住まいが叶います。プロと一緒に、あなたにぴったりの家事動線を実現してみませんか。
【2025年以降の新常識】これからの家づくりと家事動線
これからの家づくりでは、暮らしの快適さや効率を支える環境が大きく変化します。家事動線もまた、新しいスタンダードに合わせた設計が重要です。今後の家づくりのトレンドを以下の表にまとめました。
<これからの家事動線 3つの新常識>
| 2025年以降の新常識 | 
概要 | 
家事動線・収納動線への影響 | 
| 1. 省エネ住宅の義務化 | 
2025年4月から新築住宅の断熱・省エネ基準が強化されます。 | 
高気密高断熱な家は、全館空調や除湿機が効率良く稼働。ランドリールームでの室内干しが早く乾き、家事の時短につながります。 | 
| 2. スマートホーム化 | 
ロボット掃除機などのデジタル家電が普及します。 | 
ロボット掃除機が稼働しやすい「段差のない床」や、定位置となる「自動収納ベース」の設置が、片付いた空間を維持する鍵です。 | 
| 3. 宅配サービスの日常化 | 
置き配や食料品の宅配利用が増加しています。 | 
玄関先に「宅配ボックス(冷蔵対応タイプなど)」を設置。荷物や食材の受け取り・片付けの手間を減らし、玄関の散らかりを防ぎます。 | 
 
カーボンニュートラルの実現に向け、省エネ住宅が義務化
2025年4月から、すべての新築住宅で「断熱性能等級4」と「一次エネルギー消費量等級4」以上を満たすことが義務化されます。これは、2050年のカーボンニュートラル実現に向けた国の取り組みの1つです。
基準の引き上げで住宅のエネルギー効率が向上し、冷暖房コストの削減や快適性の向上が期待されます。また、全館空調や高性能換気システムの普及が進み、より省エネで健康的な暮らしが実現しやすくなるでしょう。
スマートホーム化で実現!家事がラクになる未来の動線設計
これからの家事効率化には、テクノロジーと動線の融合が欠かせなくなるでしょう。例えば、ロボット掃除機がスムーズに動けるよう床の段差をなくしたり、ロボットの自動収納ベースを設置したりと、デジタル家電を活かす設計がポイントになります。
暮らしのデジタル化を前提にした間取りなら、家事の時短だけでなくストレス軽減にもつながり、より快適な住まいが実現します。
置き配時代の新常識!宅配ボックスで快適な受け取りを
共働き世帯の増加や高齢化に伴い、置き配や食料品の宅配サービスはますます身近な存在になるでしょう。こうしたライフスタイルには、宅配ボックスが必需品となります。大型タイプや冷蔵対応の宅配ボックスを設置すれば、買い物や片付けの手間を減らし、毎日の負担を軽くできます。
あなたの暮らしに合った最高の家事動線を見つけるために
どんな間取りも、家族構成や働き方、休日の過ごし方によって最適解は異なります。また、子育て中と子育てが一段落した後など、ライフステージによって必要な家事動線は変化するのです。
だからこそ、将来の暮らしまで見据えたプランニングが大切。プロと一緒にご自身のライフスタイルを丁寧に棚卸ししましょう。アエラホームで、あなたの暮らしにぴったりの家事動線を見つけてみませんか。後悔のない家づくりの一歩を踏み出しましょう。