なぜ平屋は収納不足で後悔しやすい?整理収納のプロが教える3つの落とし穴
平屋は暮らしやすい反面、収納の少なさに悩む人が少なくありません。ここでは、収納に悩む原因となる3つの落とし穴をプロの視点で解説します。
【落とし穴1】生活動線と収納動線が交錯する
平屋はすべての生活がワンフロアで完結するため、リビングに荷物が集まりやすい構造です。生活動線上に収納がないと「とりあえず置く」という行動につながり、リビングが雑多な印象になりかねません。
防ぐには、散らかりやすい場所の近くに収納を設けたり、行き止まりをつくらず回遊できる動線にしたりと、収納動線を意識した計画が不可欠です。日々の動きと収納位置が自然につながる設計であれば、散らかりにくく片付けやすい住まいが実現します。
【落とし穴2】「とりあえず」のクローゼットでモノが溢れる
たくさんの荷物をしまえる大容量の収納は、一見便利そうに映るでしょう。しかし、ただ詰め込むだけでは中身を把握できず、使いづらさや散らかりの原因となります。道具の用途や使用頻度によって最適な収納の量や場所は異なるのです。
親子で一緒に過ごす時間が長いと、どうしても私物がリビングに集中しがちです。リビング近くに収納があれば散らかりを最小限に抑えられます。実際の暮らしを具体的に想像し「何を・どこに・どれくらい」しまうかを可視化する作業が、快適で使いやすい収納づくりの第一歩です。
【落とし穴3】デッドスペースの「縦空間」を見逃している
ワンフロアで生活が完結する平屋は、2階建てに比べて床面積が限られやすく、収納不足になりがち。そこで注目したいのが、小屋裏などの「縦の空間」です。
通常はデッドスペースとなる小屋裏ですが、オプションなどで収納庫を設ければ、大容量のスペースが生まれます。季節家電や思い出の品など、使用頻度の低い荷物をまとめて収納でき、生活空間を圧迫せずすっきりと暮らせるでしょう。
もちろん2階建てでも設置可能ですが、床面積に制約のある平屋においては、この「縦空間」をどう活かすかが収納力を大きく左右します。床から小屋裏までのスペースを立体的に使う工夫こそ、平屋の収納量をしっかり補うポイントです。
【解決策1・大容量】平屋収納の王道「縦空間」活用術。小屋裏・ロフト・床下
平屋の収納不足を解決するために効果的なのが、小屋裏や床下の活用です。ここでは、収納力を底上げする縦空間の使い方を具体的に解説します。
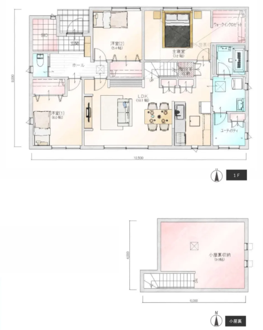
大容量No.1「小屋裏収納」のメリットと実例
小屋裏収納は、季節家電やスーツケースなど、使用頻度の低い荷物をまとめて保管できる便利なスペースです。小屋裏への出入りは折り畳み式や可動式のはしごが一般的ですが、固定階段も設置可能。ただし自治体によっては、固定階段の設置が認められないケースがあるため、事前の確認が不可欠です。
かつての小屋裏収納は、外気の影響を受けて収納物が劣化しやすい点が課題でした。しかし近年の住宅は断熱性能が大きく向上し、構造体の外側(屋根面)に断熱材を施工する外張断熱工法の家だと、小屋裏も居室に近い温度環境を保てます。ひな人形や着物など温度変化に弱い品でも安心して収納でき、活用の幅が広がりました。
「ロフト収納」との違いは?活用法と注意点
小屋裏収納と形状が似た空間に「ロフト収納」があります。小屋裏収納が天井より上のスペースを利用するのに対し、ロフトは必ずしも天井上に床があるとは限りません。また、ロフトの天井高が1.4mを超える場合は建築基準法上の居室とみなされ、建築面積に含まれる点に注意が必要です。
ロフトは収納だけでなく、書斎や子どもの遊び場など多目的な空間として活用できるのが特徴。設計を工夫すれば「ディスプレイを兼ねた収納」や「半個室の隠れ家」にもなります。あらかじめ用途をイメージして計画すれば、暮らしにフィットしたロフト空間が生まれるでしょう。
コスト(費用)はどれくらい?設置の注意点
小屋裏収納の設置費用は、広さや仕様によって変動しますが、一般的に1坪あたり10〜20万円が目安です。小屋裏への出入りは主にはしごを使います。固定階段を設置する場合は構造補強が必要になるため、コストが高くなる点に注意しましょう。
建築基準法では、小屋裏が「天井高1.4m以下」「床面積が下階の1/2未満」の条件を満たせば居室として扱われず、固定資産税の課税対象から外れる場合があります。反対に基準を超えると、居室とみなされ課税対象となるため、設計段階での慎重な検討が重要です。
隠れた収納スペース「床下収納」の活用法
収納容量を増やす方法として、床下収納も効果的です。キッチンでは缶詰や乾物などの食品ストックをまとめて収納できます。また、寝室や廊下に大容量の床下収納を設ければ、季節家電や布団、防災用品なども無理なく保管できるでしょう。
床下はデッドスペースになりやすい場所ですが、収納として活用すれば居室を広く使えます。また、小屋裏収納とは異なり、重いモノを高い場所に持ち上げる必要がないため、出し入れがスムーズです。さらに、設置コストを抑えやすい点も魅力といえるでしょう。
【解決策2・動線】プロが教える「適材適所」の収納アイデア。土間・ファミクロ・パントリー
平屋で使いやすい収納をつくるポイントは、生活動線に合わせた配置です。「動線=使いやすさ」の公式を整理収納アドバイザーの視点で解説しましょう。
玄関が片付く「土間収納(シューズクローク)」
玄関近くに土間収納があると、砂や泥が付いた道具でも気兼ねなく置けて便利です。屋外では雨や紫外線で劣化しやすい用品も、土間収納なら保護できます。外と室内をつなぐ収納スペースがあると、日々の片付けや持ち運びの負担が軽くなり、暮らしのストレスも軽減するでしょう。
ご紹介するプランでは、土間収納を玄関横の帰宅動線上に配置しています。外遊びやスポーツで汚れて帰宅しても、玄関から土間収納を通って、洗面所・浴室へ移動できるため、室内に汚れを広げず清潔な状態を保ちやすくなります。子育てやアウトドアとマッチする、実用性の高い動線計画です。

【アエラホーム ERABERU】PLAN No.1002東西入り
洗濯が3歩で終わる「ファミリークローゼット(ファミクロ)」
ファミリークローゼットがあれば、家族全員の衣類を1か所で管理でき、洗濯の「洗う→干す→しまう」作業が最短距離で完結します。動線が短いと片付けの負担が減り、リビングに服が散らかる心配もありません。家事を効率化したい家庭におすすめの収納プランです。
こちらのプランでは、洗面脱衣室に隣接してファミリークローゼットを配置しています。ファミリークローゼットで重視したいのは、収納容量を大きくする点よりも2WAYで回遊できる動線です。行き止まりのない動線は、家族の身支度が重なる朝の時間帯でも混雑を防ぎ、スムーズな準備を可能にします。

【アエラホーム ERABERU】PLAN No.1006東西入り
キッチンが散らからない「パントリー」の配置計画
パントリーは食品や日用品をすっきり保管し、キッチンの作業スペースを広く保つのに効果的です。ストックの量に合わせて棚の奥行きや段数を調整し「使う頻度」や「賞味期限」で分類すると、在庫管理が容易になります。
こちらのプランでは、パントリーにキッチンと洗面脱衣室の両方からアクセスできる2WAY動線を採用しました。リビングを通らずにパントリーに出入りできるため、土の付いた野菜や香りの強い食材を運び込んでも、リビングを汚す心配がありません。忙しい家庭でも、使い勝手のよい収納スペースとして活躍するはずです。

【アエラホーム ERABERU】PLAN No.1008 東西入り
家族がくつろぐ「リビング収納」の工夫
家族が長く過ごすリビングは、どうしても私物が集まりやすい空間です。子どものおもちゃや学校のプリント類が広がると、くつろぎの場が雑然とした印象になりかねません。
こちらのプランのように、リビングに収納があると片付けがしやすく便利です。衣類や寝具の収納には奥行き600〜900mmのクローゼットが適しています。しかし、リビングで散らかりやすい文房具や書類などの小物は、奥行きが深いとかえって使いづらい場合もあります。細々としたアイテムなら奥行き300〜450mmの浅い収納でも十分です。収納したい荷物の大きさに合わせて奥行きと容量を検討しましょう。

【アエラホーム ERABERU】PLAN No.1024 北入り
【実例集】30坪台から実現。「収納が多い平屋」の間取り成功実例3選
30坪台でも「収納が多くて暮らしやすい平屋」は十分に実現できます。ここでは、小屋裏収納やパントリーを取り入れ、限られた面積でもゆとりを生み出した事例を紹介します。
家族の成長にフィットする、小屋裏付き収納上手な平屋
平屋の収納量に感じる不安を払拭したプランです。各部屋のクローゼットに加え、屋根の勾配を活かした小屋裏収納も確保しました。衣類や寝具、季節家電などのかさばる荷物もゆとりをもって保管できます。
また、子ども部屋には収納と造り付けのデスク、ドアをそれぞれ2つずつ設けました。将来は中央で仕切って2部屋に分けられるため、子どもの成長やライフスタイルの変化にも柔軟に対応可能です。収納力と暮らしやすさを両立した、長く快適に住み続けられるプランといえるでしょう。
【長野県 S様邸】
子供の成長に寄り添うフレキシブルな子供部屋プラン

子どもが成長し、個室や学習に集中する環境が必要になったタイミングで、部屋の中央に間仕切り壁や可動式収納家具を設置します。容易に二つの独立した個室へ変更可能です。あらかじめ収納スペースとデスクを二セットずつ、左右対称になるよう配置計画に組み込みました。
空間を縦に使う賢い子供部屋の収納計画

デスク周りの収納には「アームハング棚」を採用しました。床や机の上の面積を消費せず、壁面という「縦の空間」を有効活用する設計です。
固定階段付き小屋裏収納で安全性と利便性の両立

従来のはしごタイプではなく、居室と同様の「固定階段」でアプローチできる小屋裏収納を採用しました。最大の特徴は、重い荷物を抱えたままでも安全に昇降できる点。
はしご式の収納は、出し入れの面倒さや足元の不安定さから、次第に足が遠のきがちになります。しかし、しっかりとした階段があれば、廊下や他の部屋へ移動するのと変わらない感覚でアクセス可能です。
小屋裏を収納と“隠れ家”に。楽しさと機能性を両立した住まい
小屋裏を、収納と趣味の両方に使えるスペースとして活用したプランです。小屋裏は完全な個室になっていないため、家族の気配を感じながら自分の時間を楽しめます。自然光をしっかり取り込めるスリット窓も、心地よさを高めるポイントです。
小屋裏は外気の影響を受けやすい場所ですが、構造体の外側(屋根面)に断熱材を施工する外張断熱工法の家だと、ロフトや小屋裏も居室に近い温度環境が保たれ、1年を通して快適に利用できます。 趣味を楽しみながら収納スペースとしても有効活用できる、「隠れ家」風の工夫を凝らしたプランです。
【岐阜県 K様邸】
遊び心を満たす小屋裏は家族とつながる秘密基地

単なる収納スペースを超え、お子様がワクワクする「隠れ家(シークレットベース)」として活用できるプランです。天井の低いおこもり感のある空間は、子供たちの好奇心を刺激し、創造力を育む特別な居場所に。
空間の左側には、階下のリビングダイニングとつながる室内窓を設置しました。吹き抜けを介して視線が通る設計です。
小屋裏からの眺望は家族の団らんを見守る特等席

小屋裏小屋裏の左側に設けた室内窓からは、眼下に広がるリビングダイニングを一望できます。まるでツリーハウスや船の司令塔から下界を眺めるような、非日常的な視点が魅力です。普段生活するフロアよりも高い位置から、家族がくつろぐ様子を眺められるこの場所は、お子様にとって特別な「特等席」となるでしょう。
リビングに奥行きを与える小屋裏の小窓

リビングに腰掛け、ふと視線を上げると、吹き抜けの高い壁面に小屋裏へと続く室内窓が佇んでいます。単なる壁で終わらせず抜け感を作る工夫により、リビング全体に実際の面積以上の広がりと開放感をもたらす設計です。
平屋にメリハリを生む!中2階風の書斎が心地いい立体間取り
平屋は、空間にメリハリが出にくい点がデメリットになりがちです。掲載のプランでは、天井高に変化をつけて空間をゆるやかにゾーニングし、開放感と機能性の両立を実現しました。
なかでも特徴的なのが、中2階のように設けた書斎スペースです。約2.4畳のコンパクトな空間ながら、リビングとつながりつつ個室のように落ち着いて作業できます。さらに、書斎の下部に収納を設置し、限られた床面積を圧迫することなく収納量をしっかり確保しました。デッドスペースを上手く使い、広々とした印象を叶えたプランです。
【福岡県 M様邸】
階段下を無駄なく活用!空間の有効利用術

固定階段の下部に生まれる三角形の空間や、脇の壁面は、デッドスペースになりがちな場所です。しかし、設計段階から明確な意図を持って計画すれば、貴重な収納エリアへと生まれ変わります。限られた床面積を少しも無駄にせず、家全体の収納量を最大化する工夫です。
高さを味方に・2.4畳の浮遊する書斎

吹き上げた天井が生み出す縦の空間へ階段を架け、中2階のような独立スペースを設けました。広さは約2.4畳。コックピットのように必要な道具へすぐに手が届くサイズ感が、程よい「お籠り感」を演出します。
リビングの延長線上にありながら、フロアレベルを変える明確なゾーニングにより、気持ちの切り替えがスムーズに行える場所です。

「孤立」ではなく「個立」する空間
吹き抜けや室内窓を通じて、階下から楽しげな笑い声や、キッチンで料理をする音が心地よく届きます。
家族が近くにいる安心感をBGMにしながら、誰にも邪魔されずに好きな作業に没頭できる環境。孤独を感じることなく、自分自身を取り戻す豊かな時間を過ごせます。テレワークスペースとして活用すれば、仕事と育児の見守りを両立するワークスペースとしても機能するでしょう。
平屋の収納は動線計画が全て!プロの視点で快適な住まいへ
平屋は「収納不足」になりがちですが、縦空間の活用と動線を意識した計画で快適な住まいに変わります。構造や間取りの制約が多いマンションと比べ、平屋は収納計画の自由度が高い点も魅力です。整理収納のプロの視点を加えれば、暮らしに合った最適な収納で家事が劇的に楽になるでしょう。
収納計画と同時に「断熱性能」も重視を
小屋裏を収納として活用する場合、重要になるのが住宅の断熱性能です。高気密・高断熱な施工が得意な住宅会社を選べば、1年中快適な温度環境で、大切な荷物を守れる収納空間が実現します。 理想の暮らしを叶えるには、収納の工夫だけでなく、建物の基本性能にも目を向ける姿勢が大切です。
収納の使い勝手はモデルハウスで体感を
小屋裏の広さや階段の昇り降り、家事動線のスムーズさは、図面だけでは分かりません。実際にモデルハウスへ足を運び、収納の高さや奥行きを見て、触れて確認する作業をおすすめします。 具体的なイメージが湧けば、自分たちに必要な収納量や配置が明確になり、失敗の少ない家づくりにつながるはずです。
多くの実例を見て「自分たちに合う収納」を見つける
成功する収納計画への近道は、多くの間取り実例に触れる点にあります。各社が提供するカタログや施工事例集には、プロならではの収納アイデアや、家事が楽になる動線設計のヒントが詰まっています。 平屋でどんな暮らしができるか、情報を広く集めて比較検討し、あなたの理想とする住まいづくりにお役立てください。
平屋の「収納不足」を
解消!
動線と縦空間を活かした
理想の家づくり
平屋は生活動線がシンプルで暮らしやすい反面、
「収納が少ない」という悩みを抱えがちです。
「リビングが散らかりそう」
「趣味のアウトドア用品や季節家電の
置き場がない」
…といった不安をお持ちの方も多いのではないでしょうか。
アエラホームは、平屋ならではの「縦空間」と「動線」を活かした設計で、その悩みを解決します。限られた床面積でも、工夫次第で収納量は劇的に増やせるのです。

小屋裏・ロフト活用で「収納力」と「快適さ」を両立
アエラホームが得意とするのは、デッドスペースになりがちな小屋裏やロフトを有効活用するプランです。
大容量の収納スペースを確保しつつ、高気密・高断熱の「外張W断熱工法」により、小屋裏でも1年中快適な温度環境をキープ。
大切な荷物を湿気や熱から守りながら、スッキリとした暮らしを実現します。

家事が楽になる「動線設計」をプロがご提案
収納はただ広ければ良いわけではありません。「どこに」「何を」しまうかが重要です。
アエラホームでは、整理収納の視点を取り入れた「家事動線」を重視。
玄関土間収納や、回遊できるファミリークローゼット、キッチン横のパントリーなど、お客様のライフスタイルに合わせた「適材適所」の収納プランをご提案します。

まずはモデルハウスで「収納の使い勝手」を体感しませんか?
「小屋裏収納の広さはどれくらい?」「小屋裏への階段の昇り降りは大変?」
そんな疑問は、ぜひモデルハウスで解消してください。
実際の空間を見て、触れて、収納の高さや奥行きを確認することで、自分たちに必要な収納量が明確になります。
収納たっぷりの平屋で、
理想の暮らしを叶えませんか?
まずは、お近くの展示場へ
お気軽にご来場ください。