NAGOMI– 和 –

“鋭峰と、郷への想い”

日本家屋のどっしりとしたイメージを2つの寄棟屋根を組み合わせ
淡色の外壁にすることでシャープな印象に仕上げたデザインです

画像1

寝室はゆったりとくつろげるよう、広めのスペースを確保しています。[環境設計の家]クラージュは1年を通して常温・常湿なため、暑い夏や
寒い冬も快適な睡眠を得ることができます。また、保温性にも優れているため、朝まで適温な状態が続きます。

画像2

ウッドデッキのように仕上げた 中庭には樹を植えています。
2階の吹抜けからも 眺めることができ、 四季折々の変化を楽しめます。

画像3

リビング・ダイニングに階段を配置し、 ご家族みんながリビング・ダイニングに 集まる空間にしました。
奥のキッチンは家事を考え 生活動線が良くなるよう 設計されています。

画像4

縦長の3つ並んだ窓や正方形の窓など、 様々な形の窓で外観に 遊び心を持たせたデザインです。
中庭部分のサイディングの 色を変えることで 外観に変化を持たせています。

NAGOMI– 和 –

プランバリエーション

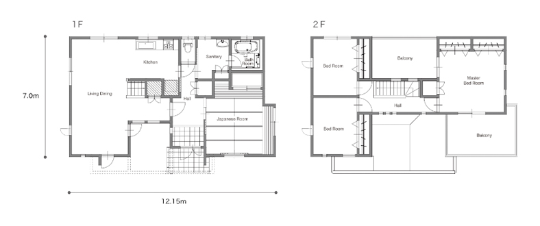
  • 35.20

    延床面積 / 116.36㎡ 
    1F / 68.99㎡ 
    2F / 47.37㎡

    35.20 坪
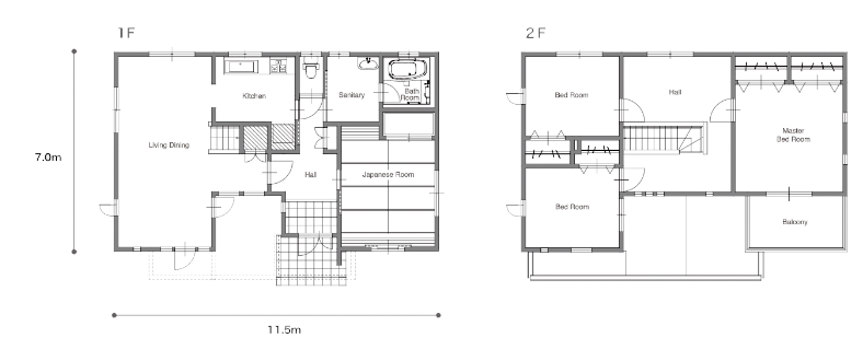
  • 38.40

    延床面積 / 126.95㎡
    1F / 76.45㎡
    2F / 50.50㎡

    38.40  坪
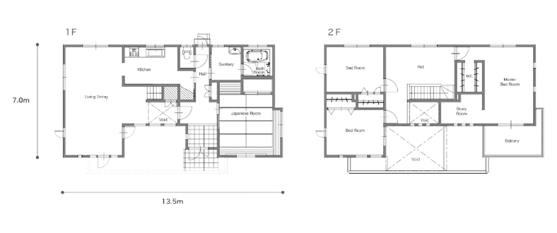
  • 42.05

    延床面積 / 139.00㎡
    1F / 74.50㎡
    2F / 64.50㎡

    42.05  坪
  • 44.09

    延床面積 / 145.75㎡ 
    1F / 81.75㎡
    2F / 64.00㎡

    44.09  坪
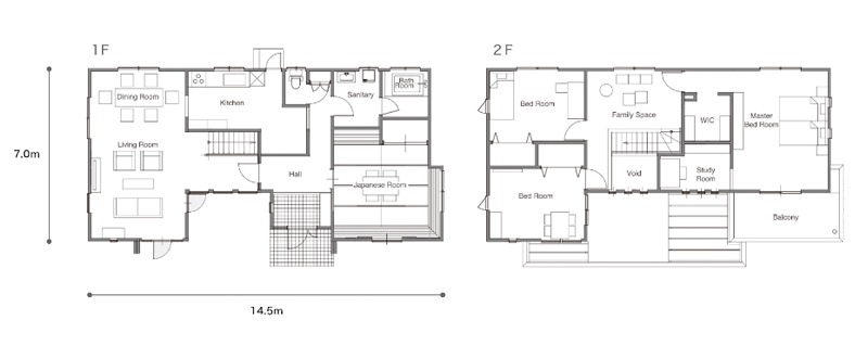
  • 47.19

    延床面積 / 156.00㎡
    1F / 85.25㎡
    2F / 70.75㎡

    47.19 坪
  • 50.29

    延床面積 / 166.25㎡ 
    1F / 91.25㎡
    2F / 75.00㎡

    50.29 坪

モデルハウス紹介

MODEL HOUSE
モデルハウス紹介

アエラホームへのご相談

CONSULTATION

展示場・イベント

全国のアエラホームから
お近くの展示場をご案内します。

来場予約・WEB相談予約

お手軽・簡単にWEBでご予約できます。

カタログ請求

ご希望に沿ったカタログを
選んでご請求いただけます。

アエラホーム
公式SNSアカウント