MODERN– モダン –

洗練の、その先へ

シンプルながらも個性的で、存在感を発揮するデザイン。
配色を変え、住まう方の色に染めることで、より鮮明に心に残る外観に変化します。

画像1

茶室をイメージした和室の入り口です。周りの空気にも馴染み、また和室内の赤い吊押入れが程よいアクセントを与えています。

画像2

和室は、中庭に面した縁からやさしい光が差し込みます。
外張断熱のクラージュは、断熱性・気密性が高いので居室内はもちろん、壁の中の結露も抑え、縁のようなスペースも快適に過ごすことができます。

画像3

テラスを見渡せるダイニングです。
キッチンもテラスやダイニングにつながっているので、窓を開ければ一つの空間のようになります。
共有スペースを多くしたり、団らんやコミュニケーションをとる場をつくったり、住まう方それぞれの[環境設計の家]を生み出します。

画像4

2階のテラスは備え付けの緑化スペースをつくりました。
手摺りは半透明にして、プライバシーを守りつつ、光と風を堪能できる空間をつくり上げました。

セレクトハウス– モダン –

プランバリエーション

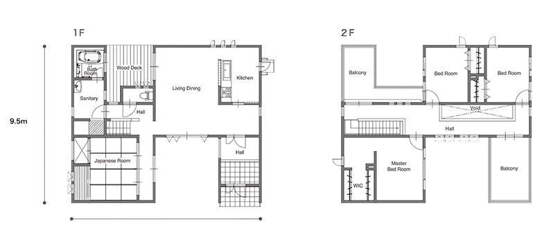
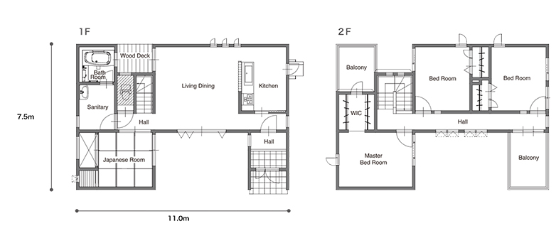
  • 35.09

    延床面積 / 116.00㎡
    1F / 62.50㎡ 
    2F / 53.50㎡

    35.09 坪
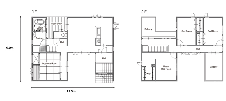
  • 38.12

    延床面積 / 126.00㎡ 
    1F / 67.50㎡ 
    2F / 58.50㎡

    38.19 坪
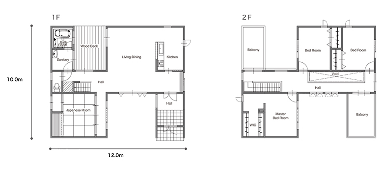
  • 42.50

    延床面積 / 140.50㎡
    1F / 78.00㎡
    2F / 62.50㎡

    42.50 坪
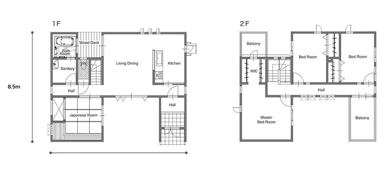
  • 43.41

    延床面積 / 143.50㎡
    1F / 82.25㎡
    2F / 61.25㎡

    43.41 坪
  • 46.74

    延床面積 / 154.50㎡
    1F / 87.50㎡
    2F / 67.00㎡

    46.74 坪
  • 63.22

    延床面積 / 209.00㎡ 
    1F / 120.50㎡ 
    2F / 88.50㎡

    63.22 坪

モデルハウス紹介

MODEL HOUSE
モデルハウス紹介

アエラホームへのご相談

CONSULTATION

展示場・イベント

全国のアエラホームから
お近くの展示場をご案内します。

来場予約・WEB相談予約

お手軽・簡単にWEBでご予約できます。

カタログ請求

ご希望に沿ったカタログを
選んでご請求いただけます。

アエラホーム
公式SNSアカウント