MIYABI– 雅 –

伝統を、新しく

伝統的な大屋根を用いた見る人を圧倒するような外観は外壁の組み合わせ方
配色の仕方によってさまざまな雰囲気に変化します

画像1

リビング上部の吹抜けにより、リビングと2階ホール、そしてガーデンテラスがひとつの空間につながります。
ガーデンテラスの窓を開けることでリビングが外とつながったより広く明るいスペースへと変化します。

画像2

中庭は外部に面した格子で程よくプライバシーを保護し、
住まう方それぞれのオリジナリティあふれる空間にできます。

画像3

中庭に面した廊下に沿って、和室を配置しています。[環境設計の家]クラージュは、部屋間の温度差が小さく廊下も快適な空間となるため、
和室の障子戸を開け、中庭を眺めながらゆっくりとした時間を過ごすことができます。

画像4

伝統的な大屋根を用いた見る人を圧倒するような外観は、外壁の組み合わせ方、配色の仕方によってさまざまな雰囲気に変化します。

MIYABI– 雅 –

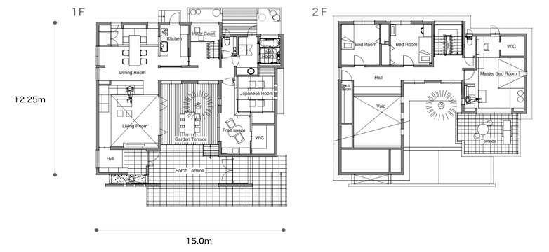
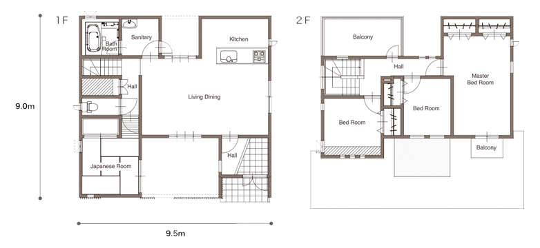
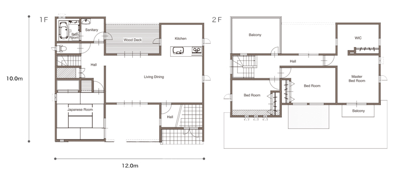
プランバリエーション

  • 34.79

    延床面積 / 115.00㎡ 
    1F / 67.00㎡ 
    2F / 48.00㎡

    35.20 坪
  • 37.81

    延床面積 / 125.00㎡
    1F / 73.00㎡
    2F / 52.00㎡

    38.40  坪
  • 41.97

    延床面積 / 137.76㎡
    1F / 80.88㎡
    2F / 57.88㎡

    42.05  坪
  • 44.92

    延床面積 / 148.50㎡ 
    1F / 87.75㎡
    2F / 60.75㎡

    44.09  坪
  • 45.38

    延床面積 / 150.00㎡
    1F / 86.75㎡
    2F / 63.25㎡

    47.19 坪
  • 64.85

    延床面積 / 214.38㎡ 
    1F / 128.13㎡
    2F / 86.25㎡

    50.29 坪

モデルハウス紹介

MODEL HOUSE
モデルハウス紹介

アエラホームへのご相談

CONSULTATION

展示場・イベント

全国のアエラホームから
お近くの展示場をご案内します。

来場予約・WEB相談予約

お手軽・簡単にWEBでご予約できます。

カタログ請求

ご希望に沿ったカタログを
選んでご請求いただけます。

アエラホーム
公式SNSアカウント