「外」とすごす家
2,600万円
税込〜
※本体参考価格は建築地により地域割増しが別途必要になります。
また、外構工事費用・その他諸費用などは含まれておりません。
※間取りのパターンにより価格は変動します。
「外」断熱による安定した温熱環境を活かし、「外」の自然環境と調和して過ごす住まいの提案です。
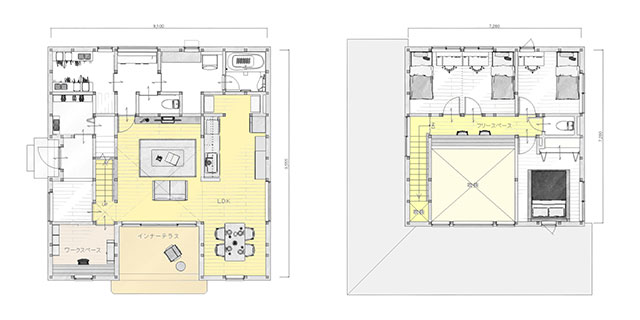
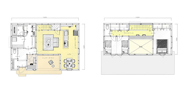
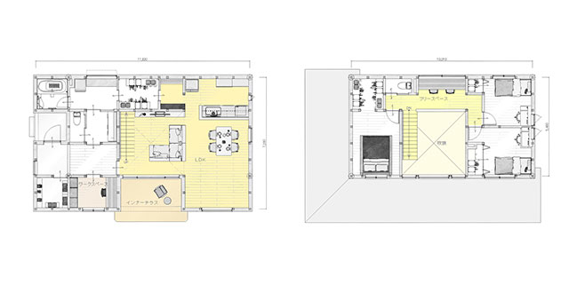
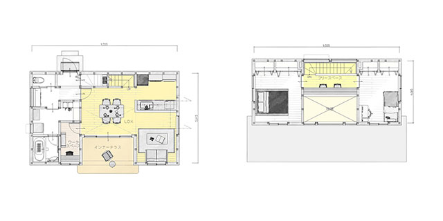
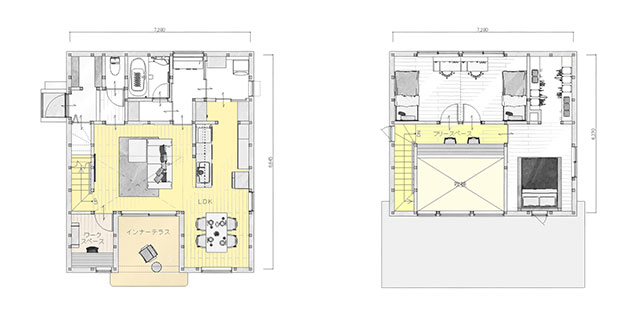
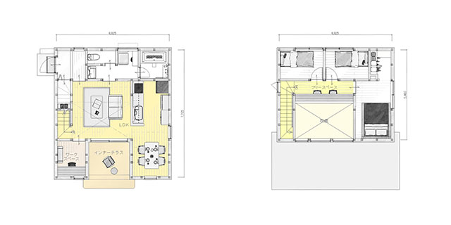
家の中心に、屋根と壁、植栽によって守られた印象のある「インナーテラス」と、それに続くLDKに象徴的な「吹抜け」を設けました。
2階には通路状の「フリースペース」を配し、立体的に室内外を連続させています。
高さのある空間を介して光と風が通り抜け、自然環境の機微を日常的に感じながら過ごすことが出来ます。
雰囲気の異なる多様な居場所がゆるやかに連なり、愛着を持って永く暮らせる住まいを目指しました。
インナーテラスの前には常緑の植栽を配し、外部からの視線を遮りながら、室内からの豊かな緑の眺めを作ります。
室内外は、引き違い窓により一体的に使うことが可能で、コンクリート金鏝仕上げのテラスは住み手が自由に使いこなすことが出来ます。
奥行きのあるテラスにより、周辺環境に左右されず、開放的な暮らしが可能となります。
緩やかな勾配の屋根と深く伸びた軒が生み出すシンプルな外観は、モダンな印象を持ちながら、街並みに自然に馴染む佇まいです。

中央の吹抜けは十分な高さを持ち、ハイサイドライトとテラスからの光が差し込むことで、明るく広がりのあるリビングスペースが生まれます。
1階は天井と窓、建具のラインを揃え、2階では吹抜けの手すりと窓台の高さを統一。
断面的な構成を丁寧に調整することで、窓や建具まわりの垂れ壁を無くし、実際よりも高く感じるすっきりとした空間となっています。
天井の圧迫感が無く、室内外が緩やかにつながる空間を実現しています。

フリースペースは、子どもの学習場所や、ちょっとした本棚・飾り棚として活用できる小さな居場所です。
高い断熱性能により、吹抜け上でも快適な温度が保たれ、開放感と籠り感が共存しています。
テラスの横には、造り付けのデスクから南面の庭を望む小さなワークスペースを配置。
個室化が可能なため、リモートワークや打ち合わせ等にも集中して取り組めます。
開放感や居心地の異なるスペースが複数あることで、家族それぞれのライフスタイルに柔軟に適応します。

十分に張り出した軒により、夏季は直射日光を防いで、天空光の明るさのみをやわらかく室内に取り入れます。
冬季は1階と2階それぞれの窓から太陽光が緩い角度で差し込み、室内に温もりをもたらします。
南面のインナーテラスに面した窓と、北面の吹抜け上部の窓をともに開閉可能とすることで、重力換気を利用して2階に風が抜ける計画としています。
断熱性が高いからこそ、自然の力を生かした快適な暮らしを実現することができます。

延床面積に応じてS・M・Lの3つのサイズを設定し、それぞれに対して南北に長い「タテ」型と、東西に長い「ヨコ」型の計6パターンのプランを用意しています。
20坪強〜40坪弱までの広さに対応し、敷地形状や家族構成、予算に合わせて最適なプランを選択することが出来ます。
いずれのプランも家事動線を整理し、無駄な廊下を無くすことで効率化し、実際の床面積以上の広さを感じる開放的な暮らしを実現。
「インナーテラス」「吹抜け」「LDK」が立体的に居場所をつなげ、どのような条件の敷地でも「外」と過ごす家を叶えます。
New Plan


































